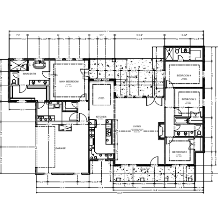
Bravos Builders

House Plan: Magnolia

4 bed | 3 bath | 2 car-garage | 2,312 SQ FT - This brand new 4-bedroom, 3-bathroom home offers modern living. This residence features an open-concept floor plan with 2,312 sq ft of living space. The spacious kitchen seamlessly flows into the living and dining areas, ideal for both daily living and entertaining. The primary suite includes a private bath and generous closet space. Additional amenities include a two-car garage, covered patio, and a cozy fireplace in the living room. Features- Beautiful red brick exterior, Light stone fireplace, open concept, vaulted ceilings, Stunning coffered dining room ceiling, picture windows in master bedroom, porch access from master bedroom, spa-like bathroom with sleek modern features, glass shower with regular and rain shower head with a wand, larger master closet, great flow from master to bathroom to closet and then laundry room, caked ceilings in other rooms, large back porch with impeccable views.