Bravos Builders

House Plan: Ironwood

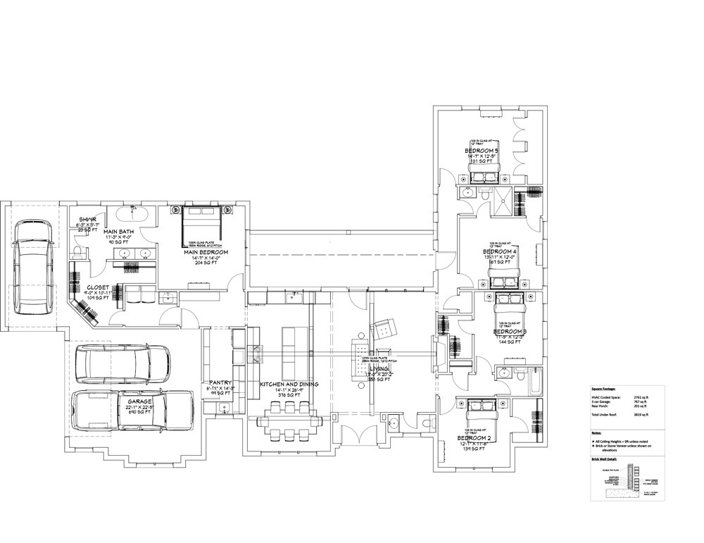
House Plan: Ironwood Approx. 2,761 Sq. Ft. 5 bedroom/ 3.5 baths, 2 car garage plus 1 car garage on side. The Ironwood is a modern farmhouse created for buyers wanting architectural impact and functionality. Its striking front elevation blends rock accents, creating a refined yet welcoming presence, while the rear covered porch extends the living space outdoors for effortless entertaining. Designed with flexibility in mind, the Ironwood offers either a four-bedroom layout or the option to expand into a larger five-bedroom configuration with an additional half bath and three-car garage. Dramatic beamed ceilings elevate the main living areas. The kitchen is anchored by a large scullery-style pantry with dedicated refrigerator space, providing exceptional storage. Gathering spaces flow naturally throughout the home, offering both openness and privacy where needed. Available in multiple configurations, the Ironwood adapts easily to growing families, multi-generational living, or those needing additional rooms, making it the most versatile and feature-rich home in the collection.